- magas biztonságú főzár, cserélhető belső zármaggal
- MABISZ 7. osztály (legmagasabb biztonsági besorolás)
- 5 db Ø18 acélcsap oldalirányban + 1 db Ø20 zárnyelv
- kiegészítő alsó nyitás-határoló retesz, amelyet
euró hengerzárbetét működtet
- edzett acél zártest, mangánlemez megerősítéssel (fúrás ellleni védelem)
- csapdazárnyelv megfordítható az ajtó nyitásirányának megfelelően
- rendelhető jobbos és balos változat (jobbos "D" a balos "S" jelölésű)
- 2 db záródási pont függőleges irányban (rudazat fogadás előkészítés)
- 2500 biztonsági zár összesen 5 + 2 reteszelési ponttal rendelkezik
- reteszek közötti távolság: 28 mm (szabvány méret)
- 4 ütemű záródás, a reteszek útjának hossza: 40 mm

- kulcslyuk (közepe) és előlap közötti távolság: 63 mm
- alap biztonsági zár (Nucleo) zármag nélkül értendő!
- választható kéttollú kulcsos vagy cilinderes kivitelben is
- védett profillal rendelkező kulcsok, egyedi kódkártyával
- rozsdamentes,króm bevonatú előlap és ellenoldal (tartozék)
- előlap könnyen leszerelhető, rejtett beépítés esetén
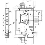
Segítség! A képeknél található műszaki ábra segítséget nyújt a zár jobbos vagy balos kivitel kiválasztásában. A "D" jelzés jobbos zárat jelenti (ha belülről nézzük a zártestet akkor a zármagot kell látnunk és ahoz viszonyítva a reteszeknek jobb oldalt kell lenniük). Az "S" jelzés a balos zárat jelenti (ha belülről nézzük a zártestet akkor a zármagot kell látnunk és ahoz viszonyítva a reteszeknek bal oldalt kell lenniük).
Megfelelő ajtónyitáshoz való zártest: - "D" - befelényíló balos ajtóhóz jobbos biztonsági zártest kell
- "D" - kifelényíló jobbos ajtóhóz jobbos biztonsági zártest kell
- "S" - befelényíló jobbos ajtóhóz balos biztonsági zártest kell
- "S" - kifelényíló balos ajtóhóz balos biztonsági zártest kell
Figyelem! A zár legfontosabb előnye és egyben saját innovációja, hogy a zár belsejében található zármag (=Nucleo), külön kerül beszerelésre a zártestbe és az bármikor kivehető, cserélhető.Ezzel a megoldással, a kulcs elvesztése, sérülése, eltulajdonítása esetén nem szükséges a zártestet cserélni, elegendő csupán ezt a zármagot cserélni - mely lényegesen egyszerűbb beavatkozás és alacsonyabb költségekkel jár, mint a teljes zárszerkezet cseréje vagy átprogramozása.
FONTOS! - ha nem biztos a jobbos vagy balos zár kiválasztásában vagy a megfelelő biztonságú zármagos kivitelben , akkor a készséggel állunk rendelkezésére az alábbi telefonszámokon: SEGÍTÜNK! 06 20 444 1434 - 06 20 331 0081